Cabinet Dimension Standards - Storage Cabinets Office Cabinets Dimensions Drawings Dimensions Com - Height including countertops 35 36 inches.

Cabinet Dimension Standards - Storage Cabinets Office Cabinets Dimensions Drawings Dimensions Com - Height including countertops 35 36 inches.. Since we use revit in our office, each of these cabinets can be a standard within our cabinet family, and as a result, they will be smart drawings. Wall cabinet sizes height and depth: Base cabinets, wall cabinets, and then tall cabinets. Standard wall cabinets are generally 24 inches in depth. 1.85m x 0.6m x 0.6m.

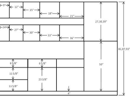
Standard width ranges 12″ to 36″. Standard width ranges 12 to 36. Standard wall cabinets are generally 24 inches in depth. 12″, 15″, 18″, 30″, 36″, 42″ and 48″. The height of kitchen cabinets to the top of the bench should be between 850mm and 1000mm.

The Complete Guide To Standard Kitchen Cabinet Dimensions
The Complete Guide To Standard Kitchen Cabinet Dimensions from kitchinsider.com
12″, 15″, 18″, 30″, 36″, 42″ and 48″. Arcade games machine dimensions drawings Base cabinets measure 34 1/2 high and 36 high with countertop. Standard wall cabinets are generally 24 inches in depth. While you can customize furnishing to fit your own personal. 2 foot / 0.6m wide; Backsplash the space between wall and lower cabinets. Custom cabinets are the most expensive of the grades.

These allow contents to either be hidden from view behind operable doors or.

Typically standard base cabinets measure 34 1 2 h and 36 h from the floor to the top of the countertop when a countertop is installed. This ensures that a standard counter top of 1 1/2 inches. Standard wall cabinet widths mirror the widths available for base cabinets ie 12, 15, 18, 24, 30, 36 inches and 30, 40, 50, 60, 80cm. In standard kitchens, the wall cabinets are typically 30 or 36 inches tall, with the space above enclosed by soffits. Standard dimensions for cabinets and furniture. A standard wall cabinet will vary in multiples of threes between 12 inches and 36 inches. If the cds numbering system is used in conjunction with cabinet elevations on contract documents, the cabinet elevations shall govern on any conflict between the requirements of the elevation and the cds number. Standard width ranges 12″ to 36″. Base cabinets measure 34 1/2 high and 36 high with countertop. Standard width ranges 12 to 36. Base kitchen cabinet standard dimensions: 2 foot / 0.6m deep; For proper installation, make sure to plan and install your cabinets 54 from the floor to the bottom of the wall cabinet.

Custom cabinets are the most expensive of the grades. Although these are the standard sizes, cabinets at a depth of up to 36 inches (91.4 cm) are also available. Other base kitchen cabinets to consider: A storage cabinet can be found in almost any environment, including office spaces, kitchens, closets, and even built in to common furniture pieces, like credenzas and shelf cubbies. Base kitchen cabinet standard dimensions:

Guide To Standard Kitchen Cabinet Dimensions
Guide To Standard Kitchen Cabinet Dimensions from www.thespruce.com
Besides, the ideal height of a backsplash is 60 cm. Base kitchen cabinet standard dimensions: The 12 cabinets fit neatly over fridges. Custom cabinets are the most expensive of the grades. 12″, 15″, 18″, 30″, 36″, 42″ and 48″. Dimensions (in inches) standard kitchen cabinet size guide designed to store kitchen supplies and food items, wall kitchen cabinets come in a variety of sizes. 2 foot / 0.6m wide; Common wall cabinet heights are 12, 36, and 42 inches.

It is made of materials that are easy to clean since the space between the wall cabinets and base cabinets are prone to water and oil splashes.

While you can customize furnishing to fit your own personal. While the list above will cover most standard base cabinet sizes. Base cabinets may have a single door, double doors, a series of drawers, or a combination of a drawer and doors; Base cabinet widths also range from 9 to 48 inches, just like overhead cabinets, but the standard height of a base cabinet is 34 1/2 inches. These allow contents to either be hidden from view behind operable doors or. 6 foot 2 inches / 1.85m tall; Take into account backsplashes or crown moldings. Standard width for a single or double door wall cabinet is generally available in widths from 9″ to 36″, we carry them in increments of 3″ (i.e., 9″, 12″, 15″). Of course, you can purchase a double sink vanity if your bathroom is spacious. Standard base cabinet depth is 24 inches 61cm. For proper installation, make sure to plan and install your cabinets 54 from the floor to the bottom of the wall cabinet. Base kitchen cabinet standard dimensions: The most expansive bathroom vanity dimensions usually come with the double sink vanities.

1.85m x 0.6m x 0.6m. A storage cabinet can be found in almost any environment, including office spaces, kitchens, closets, and even built in to common furniture pieces, like credenzas and shelf cubbies. It is made of materials that are easy to clean since the space between the wall cabinets and base cabinets are prone to water and oil splashes. Each cabinet has the cabinet type designated (i.e. Common wall cabinet heights are 12, 36, and 48.

Kitchen Cabinet Dimensions
Kitchen Cabinet Dimensions from www.houseplanshelper.com
Standard depth ranges from 12″ to 24″. If the cds numbering system is used in conjunction with cabinet elevations on contract documents, the cabinet elevations shall govern on any conflict between the requirements of the elevation and the cds number. The height of kitchen cabinets to the top of the bench should be between 850mm and 1000mm. 1.85m x 0.6m x 0.6m. Common wall cabinet heights are 12, 36, and 42 inches. Here are tall cabinet basic dimensions. The most expansive bathroom vanity dimensions usually come with the double sink vanities. These allow contents to either be hidden from view behind operable doors or.

Since we use revit in our office, each of these cabinets can be a standard within our cabinet family, and as a result, they will be smart drawings.

Dimensions (in inches) standard kitchen cabinet size guide designed to store kitchen supplies and food items, wall kitchen cabinets come in a variety of sizes. Typically standard base cabinets measure 34 1 2 h and 36 h from the floor to the top of the countertop when a countertop is installed. Of course, you can purchase a double sink vanity if your bathroom is spacious. 100 100m 102 300m 300 302 extra. Storage cabinets are furniture items that provide a hidden or protected space for items that are not usually needed on a day to day basis. A standard base cabinet has a depth of 24 inches (61 cm). Custom kitchen cabinets can be made in any dimension; Common wall cabinet heights are 12, 36, and 42 inches. Each cabinet has the cabinet type designated (i.e. Standard cabinet specs kcma certified all cabinetry manufactured by american woodmark is certified by the kitchen cabinet manufacturers association (kcma). For proper installation, make sure to plan and install your cabinets 54 from the floor to the bottom of the wall cabinet. Dimensions for cabinets and furniture have been standardized over the years to fit the average size person. Base cabinets measure 34 1/2 high and 36 high with countertop.